前言
节约集约用地是节约资源和保护环境基本国策的重要内容,是生态文明建设的必然要求。近年来,随着工业化、城镇化的推进,我国建设用地供需矛盾日益加剧,各级政府和社会各界对节约集约用地的重视程度也不断提高。值得注意的是,节约集约不只是一种理念和意识,而是贯穿在一个个农业、工业、商业及各项基础设施建设项目中,显化在一个个具体的实施环节中。
2019年,为贯彻落实《中华人民共和国国民经济和社会发展第十三个五年规划纲要》明确提出的“推广应用节地技术和节地模式”要求,推进生态文明建设,推动高质量发展,自然资源部办公厅下文要求各地上报一批近年来节地效果明显,并具有先进性、示范性、代表性特征,具备良好应用前景和推广价值的节地技术和节地模式案例。
在自然资源部自然资源开发利用司指导下,中国自然资源经济研究院对各地上报的案例进行了梳理。现将梳理后的节地案例通过中国自然资源经济研究院网络宣传平台介绍给大家,让大家对当前我国土地节约集约利用情况有所了解和认知,对推动我国土地资源节约集约利用起到促进作用。
一、基本情况
中卫市第一中学位于沙坡头区文昌镇,中央大道以北、文萃南街以西,为城镇范围内车流量较大的区域,上下班高峰期容易形成机动车乱停乱放、交通拥堵的情况。为解决市区机动车乱停乱放问题,规范道路交通秩序,确保城市道路畅通,我市通过地下立体开发,利用位于中卫市第一中学东北角的城镇地下空间作为公共停车场用地。
二、主要做法、模式特点和配套政策
(一)主要做法
对位于中卫市第一中学地下的6米空间进行开发,建设地下一层停车场,停车位142个,配套建设排水、供水、采暖通风、配电、电气照明、电子智能化管理系统、充电桩等。

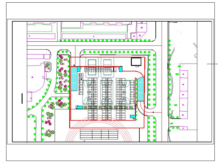
图1 中卫市第一中学地下公共停车场项目设计图

图2 中卫市第一中学地下公共停车场项目施工现场照片
(二)模式特点
传统的立体停车场多为地上地下一体停车场或地上多层停车场思路,开发限制较多,不但造价高,而且老城区改造较为困难,专门开辟停车场用地的难度大。该项目类型的模式特点在于不改变地上用途,利用城镇地上科教用地等地块的地下闲置空间进行开发利用,使土地资源的空间价值得以充分体现。
(三)配套政策
参照国家发展和改革委员会、财政部、国土资源部、住房和城乡建设部、交通运输部、公安部、中国银行业监督管理委员会《关于加强城市停车场设施建设的指导意见》(发改基础〔2015〕1788号)。
三、节地效果
通过该项目的实施,节约0.7469公顷(11.2亩)地上建设用地空间,该项目的落成有效缓解该区域停车难问题,方便市民安全出行的同时也提升了我市公共服务和城市管理水平。

图3 中卫市第一中学地下公共停车场项目效果示意图
四、适用范围
可适用于城镇范围内,尤其是车流密集、车位紧张的城区。
五、应用前景
下一步可探索以居住区、大型综合交通枢纽、城市轨道交通外围站点(P+R)、医院、学校、旅游景区等特殊地区为重点,在内部通过挖潜及改造建设停车设施,并在有条件的周边区域增建公共停车设施,建设停车楼、地下停车场、机械式立体停车库等集约化的停车设施,并按照一定比例配建电动汽车充电设施。